咨詢熱線
15231779603
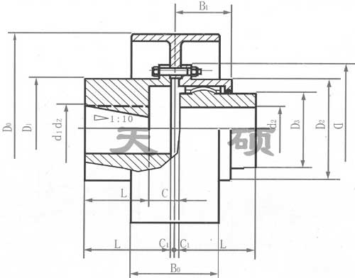
產品描述:NGCLZ制動輪鼓形齒式聯軸器承載沖擊性能好,但齒面接觸應力和齒根彎曲疲勞強度要求高,如果我們采取特殊結構,特殊材料,特殊工藝
15231779603


NGCLZ制動輪鼓形齒式聯軸器承載沖擊性能好,但齒面接觸應力和齒根彎曲疲勞強度要求高,如果我們采取特殊結構、特殊材料、特殊工藝,那么該聯軸器就能夠滿足大直徑軋管機的要求。隨著我國經濟的發展,大直徑軋管機需求增加,其主傳動使用聯軸器的要求也越來越高,滿足該要求的聯軸器有十字式萬向聯軸器和大轉矩鼓形齒式聯軸器,其中十字式萬向聯軸器轉矩可以達到,但承載沖擊性能差、壽命短,這是一個很大的缺點;目前國內軋機用的標準聯軸器無法滿足要求,只達到需求轉遞轉矩的1/2~1/3,國外聯軸器專業制造商可以滿足要求,但由于它采用專門的技術,再加上制造難度大,所以價格特別昂貴。一臺軋管機需要10套左右,再加上備件外購費用很大。天碩聯軸器廠根據客戶需求研制的各種鼓形齒聯軸器已能滿足國內各廠家的需求。所謂鼓形齒即為將外齒制成球面,球面中心在齒輪軸線上,齒側間隙較一般齒輪大,鼓形齒聯軸器可允許較大的角位移(相對于直齒聯軸器),可改善齒的接觸條件,提高傳遞轉矩的能力,延長使用壽命。有角位移時沿齒寬的接觸狀態。具有徑向、軸向和角向等軸線偏差補償能力,具有結構緊湊、回轉半徑小、承載能力大、傳動效率高、噪聲低及維修周期長等優點,特別適用于低速重載工況,如冶金、礦山、起重運輸等行業、也適用于石油、化工、通用機械等各類機械的軸系傳動鼓形齒式聯軸器屬于剛撓性聯軸器,齒式聯軸器是由齒數相同的內齒圈和帶外齒的凸緣半聯軸器等零件組成。外齒分為直齒和鼓形齒兩種齒形,齒式聯軸器在工作時,兩軸產生相對角位移,內外齒的齒面周期性作軸向相對滑動,必然形成齒面磨損和功率消耗,因此,齒式聯軸器需在有良好和密封的狀態下工作。齒式聯軸器徑向尺寸小,承載能力大,常用于低速重載工況條件的軸系傳動,高精度并經動平衡的齒式聯軸器可用于高速傳動,如燃汽輪機的軸系傳動。

聯系電話:
手機號碼:
企業Q Q:
聯系郵箱:
公司地址: